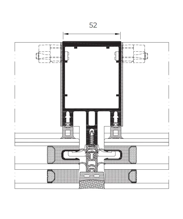
Description
Curtain wall system with an exterior all-glass appearance, fixed to the supporting framework through the combination of clips and a U-profile inserted into the glazing cavity.
FEATURES
- Thermal transmittance – Ucw ≥ 0.6 (W/m²K)
- Air permeability – Class AE
- Water tightness – Class RE1500
- Wind resistance* – QUALIFIED
- Reference test AEV 3.00 x 3.50 m — British CWCT certification
- * Design load 2000 Pa – Safety load 3000 Pa





Reviews
There are no reviews yet.