Description
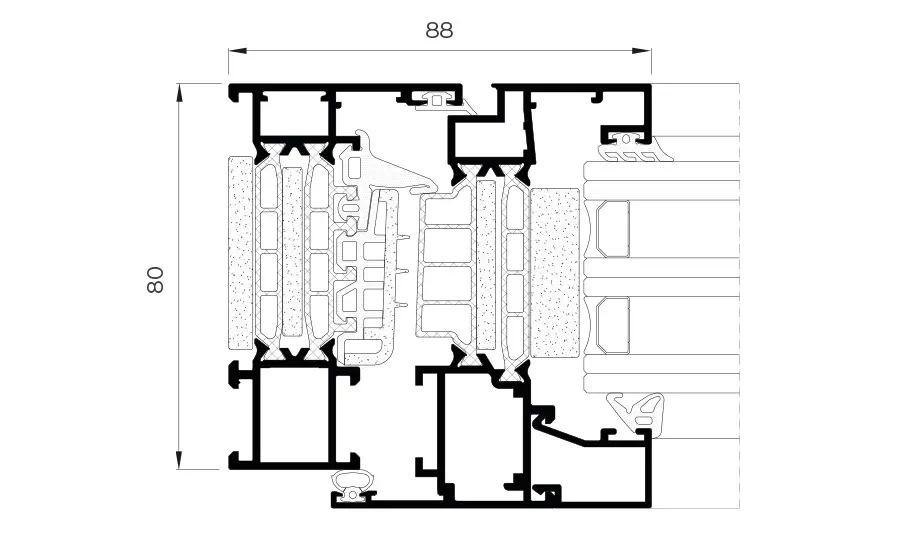
With a frame depth of 80 mm, the COR 80 Industrial series meets the most demanding climatic requirements thanks to its thermal break with 45 mm tubular polyamides and the incorporation of cross-linked polyolefin profiles both in the glazing rebate and inside the frame and sash.
FEATURES
- Thermal transmittance
Uw ≥ 0.71 (W/m²K) - Acoustic insulation
Rw up to 46 dB - Air permeability
Class 4 - Water tightness
Class E1950 - Wind resistance
Class C5 - Burglar resistance
Grade RC2 (WK2) - Reference test AEV 1.23 x 1.48 m / 2 sashes





Reviews
There are no reviews yet.