Description
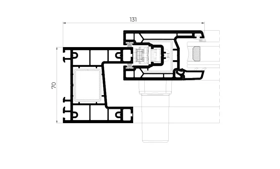
Sliding window and balcony door system with a frame depth of 70 mm, offering optimal thermal and acoustic performance. Option of a minimalist central junction of 30 mm.
FEATURES
- Thermal transmittance – Uw ≥ 1.3 (W/m²K)
- Acoustic insulation – Rw up to 38 dB
- Air permeability – Class 4
- Water tightness – Class 7A
- Wind resistance – Class C5
- Reference test AEV 1.23 × 1.48 m / 2 sashes






Reviews
There are no reviews yet.