Описание
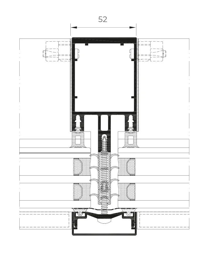
Система за окачени фасади, съставена от 52 мм колони и фрамуги, образуващи носещата конструкция. Стъклото е закрепено от всичките четири страни посредством непрекъснат притискащ профил, завинтен отвън към винтови отвори, вградени в колоните и фрамугите, като цялата система за закрепване е скрита под декоративна капачка с видимо сечение от 52 мм.
ХАРАКТЕРИСТИКИ
- Топлопропускливост – Ucw ≥ 0,6 (W/m²K)
- Въздухопропускливост – Клас АЕ
- Водонепроницаемост – Клас RE1350
- Устойчивост на вятър* – КВАЛИФИЦИРАН
- Референтен тест AEV 3.00 x 3.50 m Британски сертификат CWCT
- * Проектно натоварване 2000 Pa – Безопасно натоварване 3000 Pa






Отзиви
Все още няма отзиви.