SHEV

Описание

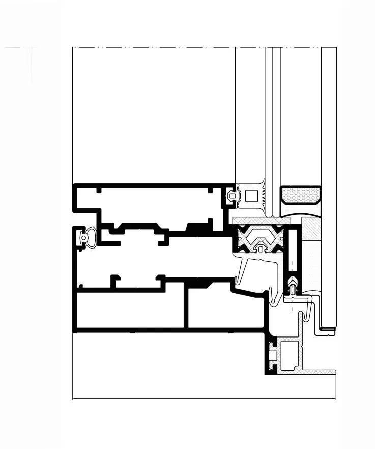
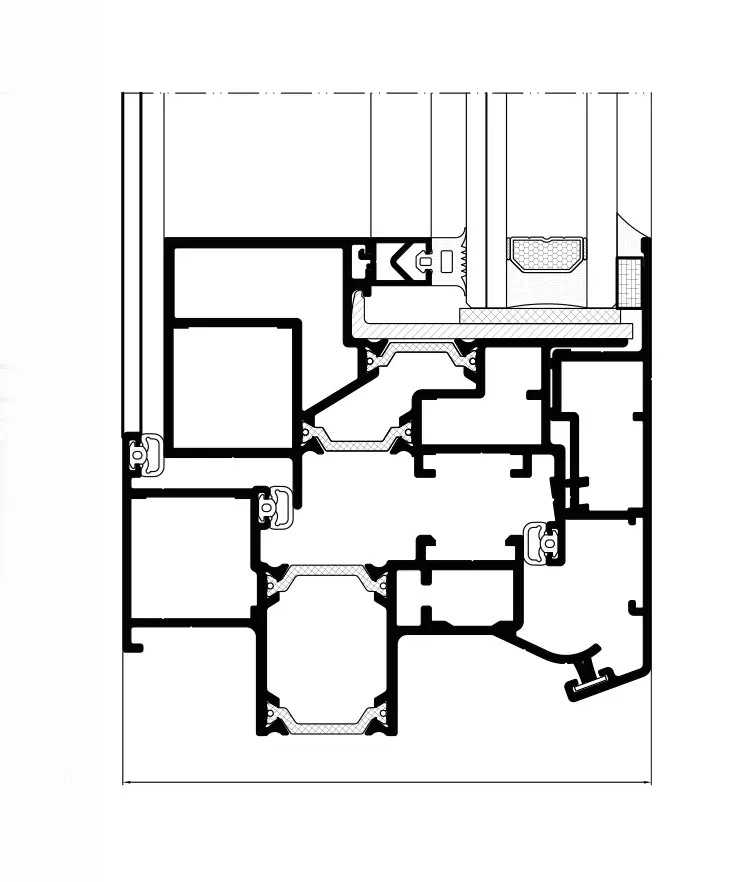
Новата система за вентилация за дим и топлина SHEV се състои от конструкция, образувана от рамка и интегриран мотор, който позволява операции по отваряне и затваряне. В случай на пожар, тя се активира автоматично, за да позволи естествено отвеждане на топлина и дим нагоре. Основните ѝ функции са да подобри видимостта и да намали натрупването на топлина вътре в сградата, като по този начин минимизира риска от вдишване на дим и улеснява евакуацията на обитателите.

ХАРАКТЕРИСТИКИ

  • Топлопропускливост – Uw ≥ 0,9 (W/m²K)
  • Звукова изолация – Rw до 44 dB
  • Надеждност – Клас Re1000
  • Отвор за натоварване от сняг – СЛ 60
  • Ниска околна температура – Т(-5)
  • Вятърно натоварване – WL 1200
  • Излагане на топлина – Б 300
  • Аеродинамична свободна зона – Според изчислението
  • Доклад № 19-001796-PR15 (PP-A04-03-en-01)

Отзиви

Все още няма отзиви.

Бъдете първият написал отзив за “SHEV”

Вашият имейл адрес няма да бъде публикуван. Задължителните полета са отбелязани с *

Други категории