Описание
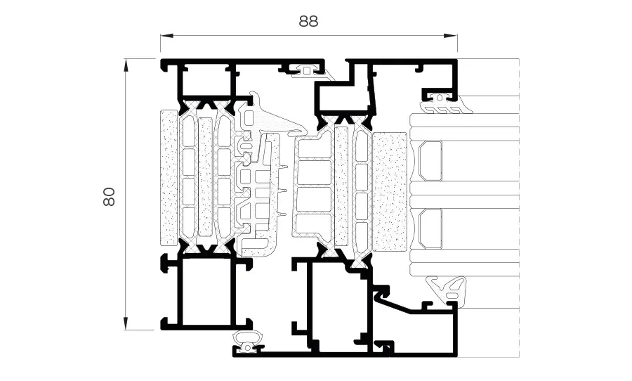
С дълбочина на рамката от 80 мм, серията COR 80 Industrial отговаря на най-взискателните климатични изисквания благодарение на термомост с 45 мм тръбни полиамиди и вграждането на омрежени полиолефинови профили както във фалца за остъкляване, така и във вътрешността на рамката и крилото.
ХАРАКТЕРИСТИКИ:
- Топлопропускливост
Uw ≥ 0,71 (W/m²K) - Звукова изолация
Rw до 46 dB - Въздухопропускливост
Клас 4 - Водонепроницаемост
Клас Е1950 - Устойчивост на вятър
Клас C5 - Устойчивост на кражба с взлом
Клас RC2 (WK2) - Референтен тест AEV 1,23 x 1,48 м / 2 крила





Отзиви
Все още няма отзиви.