COR 70 OC

Описание

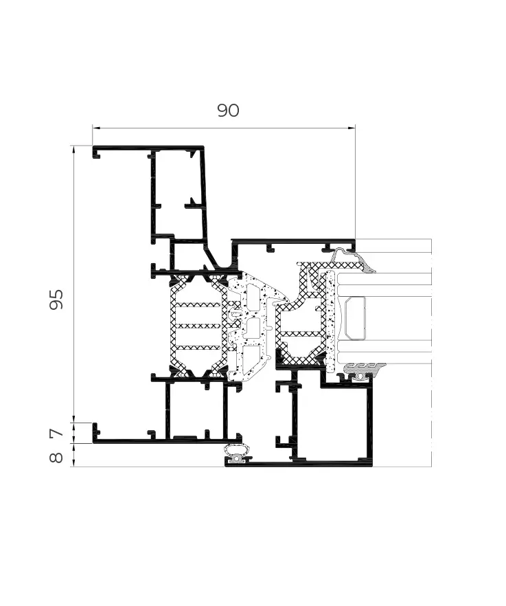
Система със скрито крило и моноблокова рамка, пригодена за френския пазар, опростяваща монтажа на място. Благодарение на тази нова рамка, процесът на производство и монтаж на прозорци е рационализиран, тъй като няма нужда от закрепване на лайсни, припокривания, удължения или други допълващи профили, като по този начин се намалява времето за монтаж и прилягане. Това решение се предлага с опции за квадратно или скосено рязане, адаптирайки се към производствените предпочитания на всяка работилница. Версията с полувидимо крило на системата COR 70 OC разширява естетическите възможности на тази серия с моноблокова рамка, предлагана също с квадратно или скосено рязане.

ХАРАКТЕРИСТИКИ

  • Топлопропускливост    Uw ≥ 0,85 (W/m²K)
  • Звукова изолация    Rw до 46 dB
  • Въздухопропускливост    Клас 4
  • Водонепроницаемост    Клас 1650
  • Устойчивост на вятър    Клас C5
  • Референтен тест AEV 1,23 × 1,48 м / 1 крило
  • DTA сертификация от CSTB лаборатория

Отзиви

Все още няма отзиви.

Бъдете първият написал отзив за “COR 70 OC”

Вашият имейл адрес няма да бъде публикуван. Задължителните полета са отбелязани с *

Други категории