Описание
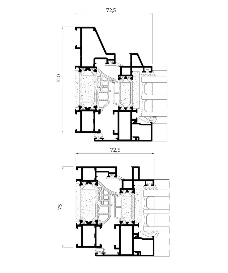
Вдъхновена от традиционните дизайни, новата система Alu-Steel съчетава изключителните характеристики на алуминия с класическата естетика, характерна за стоманата. С видима повърхност от само 72,5 мм, Alu-Steel е идеално решение както за ремонти, така и за ново строителство, предлагайки се в праволинейни и скосени варианти.
ХАРАКТЕРИСТИКИ
- Топлопропускливост – Uw ≥ 0,83 (W/m²K)
- Звукова изолация – Rw до 45 dB
- Въздухопропускливост – Клас 4
- Водонепроницаемост – Клас Е1200
- Устойчивост на вятърно натоварване – Клас C5
- Референтен AEV тест 1,23 × 1,48 м / 2 крила






Отзиви
Все още няма отзиви.