A 70 Hinged

Описание

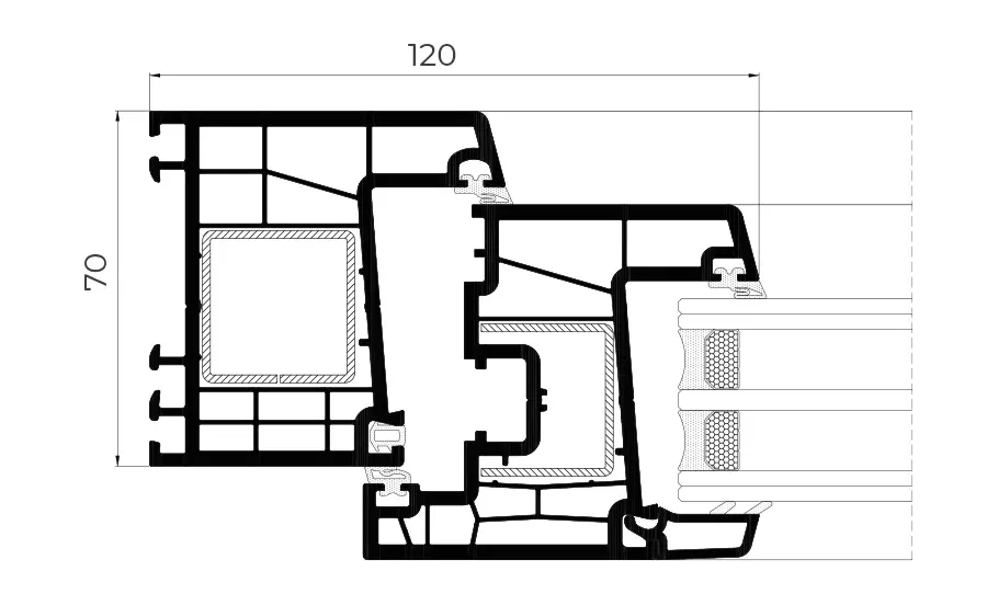
Система с панти с дълбочина на рамката 70 мм и максимален капацитет на остъкляване 42 мм. 5-те вътрешни камери както в рамката, така и в крилото осигуряват отлична енергийна ефективност, постигайки Uw стойност от 0,9 W/m²K. Предлага се с прави, скосени или извити крила. Опционална центрирана дръжка.

ХАРАКТЕРИСТИКИ

  • Топлопропускливост – Uw ≥ 0,9 (W/m²K)
  • Звукова изолация  – Rw до 46 dB
  • Въздухопропускливост – Клас 4
  • Водонепроницаемост – Клас Е1800
  • Устойчивост на вятър – Клас C5
  • Референтен тест AEV 1,23 x 1,48 м / 2 крила

Отзиви

Все още няма отзиви.

Бъдете първият написал отзив за “A 70 Hinged”

Вашият имейл адрес няма да бъде публикуван. Задължителните полета са отбелязани с *

Други категории