4700 Sliding

Описание

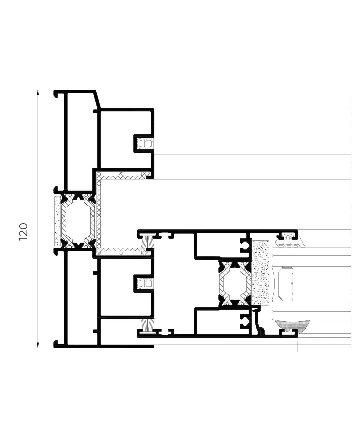
Тази плъзгаща система, предлагана във варианти с повдигане и плъзгане или в редица, е идеалното решение за затваряне на големи отвори. Тя се отличава с модерна естетика с прави линии, намален централен профил и големи остъклени повърхности, които осигуряват светли и комфортни пространства, благодарение и на отличните си термични и акустични характеристики.

ХАРАКТЕРИСТИКИ

  • Топлопропускливост – Uw ≥ 1,0 (W/m²K)
  • Звукова изолация – Rw до 40 dB
  • Въздухопропускливост – Клас 3* / 4**
  • Водонепроницаемост – Клас 7А
  • Устойчивост на вятър – Клас C5* / C2**

* Референтен тест за редова AEV 1.8 x 2.2 м / 2 крила
** Референтен тест за повдигащо-плъзгаща се AEV 4.0 x 2.50 м / 2 крила
Тест за сигурност: Референтен тест 2.40 x 2.40 м / 2 крила

Отзиви

Все още няма отзиви.

Бъдете първият написал отзив за “4700 Sliding”

Вашият имейл адрес няма да бъде публикуван. Задължителните полета са отбелязани с *

Други категории